Villa a schiera d'angolo in vendita

Cornate D'Adda, Via puccini
€ 485.000
3 locali 3 locali
221 Mq 221 Mq
3 bagni 3 bagni

Villa a schiera d'angolo in vendita

Cornate D'Adda, Via puccini

Descrizione annuncio

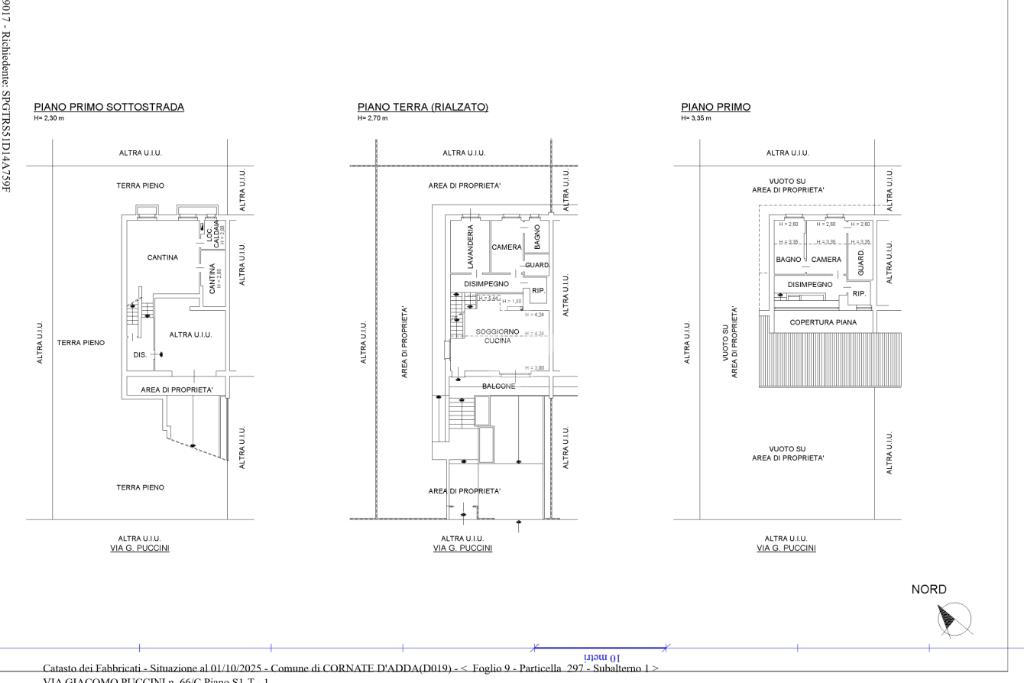
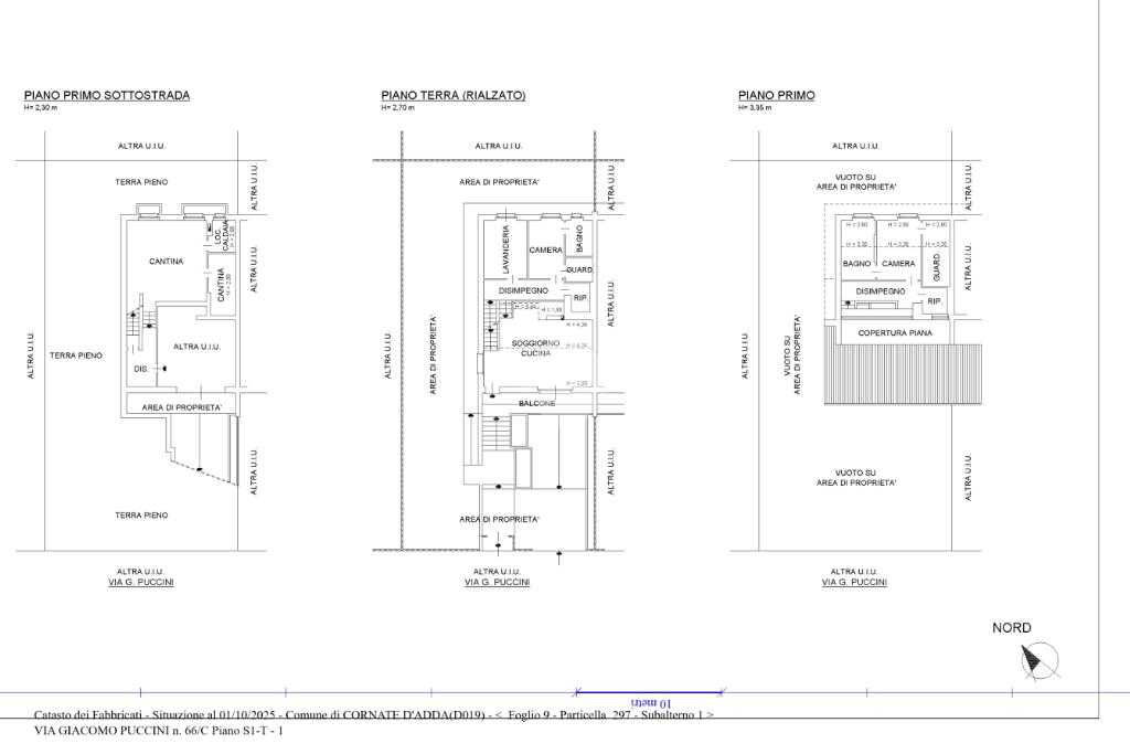
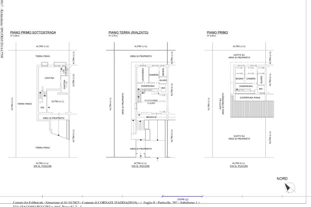
Nel comune di Cornate d'Adda, proponiamo una villa a schiera di testa di 221 mq commerciali con taverna,3 bagni e cabine armadio per ogni stanza, perfetta per chi cerca una soluzione abitativa moderna e funzionale. Questa villa a schiera di testa è stata recentemente ristrutturata nel 2023, offrendo un ambiente contemporaneo e accogliente. La proprietà si sviluppa su un piano basso e comprende tre locali ben distribuiti, con la possibilità di avere una stanza in più, ideali per soddisfare le esigenze di una famiglia. Gli spazi interni sono stati progettati per garantire comfort e praticità, con finiture moderne che esaltano l'eleganza della struttura. La posizione della villa, essendo di testa, assicura una maggiore privacy e un'ottima esposizione alla luce naturale. Questa soluzione rappresenta un'opportunità unica per chi desidera vivere in un contesto tranquillo, senza rinunciare alla vicinanza ai principali servizi e collegamenti della zona.

la soluzione dispone di riscaldamento a pavimento, ventilazione meccanica controllata che permette di non avere problemi di umidità, predisposizione impianto fotovoltaico, pompa di calore per riscaldamento, caldaia a condensazione del 2023, infissi in doppio vetro PVC, impianto climatico canalizzato (HVAC), dotato di vespaio, cappotto esterno, un sistema domotico e impianto d'allarme

Mostra tutto

Nelle vicinanze

Trasporto pubblico Trasporto pubblico
Cornate D'Adda, Sauro/Volta
Cornate D'Adda, Sauro/Volta
410 m
Cornate D'Adda, Dante/Marconi
Cornate D'Adda, Dante/Marconi
440 m
Ricariche auto elettriche Ricariche auto elettriche
Centro Sportivo Cornate D'Adda | Ressolar
880 m
Scuole Scuole
Scuola Primaria Dante Alighieri
460 m
Scuola secondaria di primo grado Guglielmo Marconi
1,1 Km
Scuola Primaria Leonardo da Vinci
1,6 Km
Scuola Primaria di Colnago
1,8 Km
Scuole Secondarie di Primo Grado
2,7 Km
Farmacia Farmacia
Farmacia
2,7 Km
Negozi Negozi
Negozi
3,0 Km
Panificio Panzeri
3,0 Km
Cisalfa
3,0 Km
Terranova
3,0 Km
Bar Bar
Bar
1,1 Km
Happy Drink
2,7 Km
Oratorio di Bottanuco
2,8 Km
Bloom
2,9 Km
Apple's Café
2,9 Km
Ristoranti Ristoranti
Bella Italia
410 m
Al Boschetto
1,2 Km
Al Castello
1,4 Km
Luna Rossa Due
3,0 Km
Il Nilo 2
3,0 Km
Mostra tutto

Caratteristiche

Rif.:
61125736
Piano:
1 di 2 (Piano basso)
Box:
1
Balconi:
1
Camere da letto:
2
Arredamento:
Completo
Mostra tutto
Prezzo Prezzo
€ 485.000
Rata mutuo Rata mutuo
€ 2.289 / mese
Spese annue Spese annue
€ 0
Proponi il tuo prezzoProponi il tuo prezzo

Classe Energetica

D
D
D
D
D
D
D
D
D
EP globale rinnovabile:
166.82 kW h/m² anno
EP invernale del fabbricato:
EP estiva del fabbricato:
Anno di costruzione:
1982
Riscaldamento:
Autonomo
Tipo impianto:
A pavimento
Tipo alimentazione:
Metano

Ti interessa visionare l'immobile?

Fissa un appuntamento  Fissa un appuntamento

Richiedi informazioni

Clicca su Leggi per aprire l'informativa
* Questi campi sono obbligatori

Calcola il tuo mutuo

Semplice e senza impegno
Anticipo

( % )
Mutuo

( % )

pochi semplici passi

inserisci i tuoi dati
Questionario completato
Grazie per aver richiesto un appuntamento senza impegno con un nostro Consulente del Credito e Assicurativo.

Hai inserito correttamente tutti i dati necessari e a breve riceverai una e-mail con un link da convalidare per inviare i tuoi dati.
Affiliato
Agenzia Quattro Torri Srl
P.zza Roma, 14 20874 Busnago (MB)

Il nostro staff


  • Kevin Maffolini
    Affiliato

  • Michela Zingaro
    Collaboratrice
P.zza Roma, 14 20874 Busnago (MB)
Zona: Busnago
Mostra su mappa
Affiliato
Agenzia Quattro Torri Srl
P.zza Roma, 14 20874 Busnago (MB)

2025 Tecnocasa Franchising S.p.A. - P. IVA 08365160152 - Via Monte Bianco 60/A 20089 Rozzano (MI). Ogni agenzia ha un proprio titolare ed è autonoma. Privacy policy | Policy utilizzo | Cookie policy